Historiallinen bunkkeri saa uuden elämän

20.2.2026
Eilen pidettiin Bunkkeri -hankkeen esittely- ja keskustelutilausuus uudella Ahmon koululla. Tilaisuudessa oli n. 30 aiheesta kiinnostunutta osallistujaa. Yhteinen mielipide oli bunkkerin säilyttäminen Siilinjärveläisessä maisemassa. Mutta sen tuleva käyttötarkoitus herätti keskustelua. Eniten kannatusta sai tilojen rakentaminen monitoimitiloiksi. Ensimmäisen kerroksen osalta tämä merkitsisi sitä, että mahdollistetaan tilat palvelemaan eri käyttötarkoituksiin. Näitä voisi olla esimerkiksi eri tilaisuudet, tapahtumat, esiintymiset ja lisäksi toimia vaikkapa juhlien pitopaikkana. Toisen kerroksen rajoitteena on tilojen jakautuminen useammaksi huoneeksi ja niiden muodostaessa eri kokonaisuuksia. Tämä toisaalta on myös mahdollisuus tilojen vuokraamiseksi pysyvämpään käyttöön.
Bunkkerin omistaa Siilinjärven kunta ja se on teknisten palveluiden ylläpitämä. Tilaisuudessa nousikin esille, mikä kunnan organisaatio toimisi tilojen operaattorina eli ohjaisi tilojen käyttöä. Tavoitteena on, että tilat tuottaisivat ainakin vuosittaiset käyttökustannukset, jotka arvioidaan olevan 35-45 t€. Tähän löytyy varmaan luonteva ratkaisu, joka mahdollistaa tilojen monipuolisen käytön myös vuokraustoiminnan.
Rakennuksen sisäosien purkutyöt on nyt saatu valmiiksi. Seuraavana on vuorossa rakennuksen tekninen suunnittelu. Tekninen suunnittelu käsittää rakenne ja LVISA -suunnittelut. Vaikka rakennuksen rakenteet ovat ikäisekseen hyvässä kunnossa, niin rakennesuunnittelussa nykyiset rakenteet vielä tarkistetaan sekä suunnitellaan niiden tarvitsemat vahvistukset sekä muut parannukset. Tavoitteena on tehdä sellaiset rakenteet, jotka kestävät taas seuraavat 100 vuotta. LVISA suunnittelu tähtää siihen, että vanha rakennus saa nykyaikaisen teknologian palvelemaan rakennuksen käyttäjiä.
Vielä hankkeen aikataulutuksesta; maaliskuun aikana on tavoitteena saada rakennuslupa sekä koota muu materiaali rakennustöiden urakkakilpailutusta varten. Urakkakilpailutus huhti-toukokuussa ja kesäkuun lopulla voisi jo valittu urakoitsija aloittaa työt.
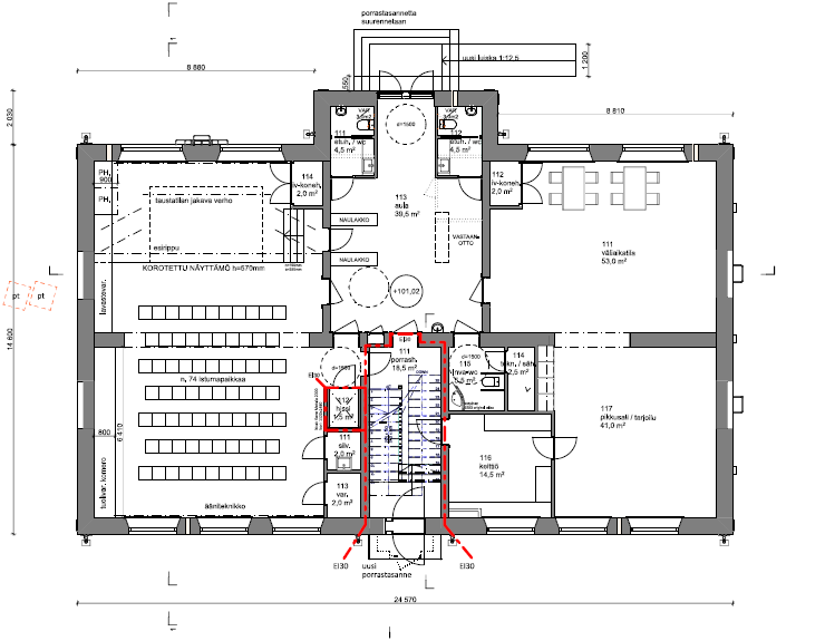
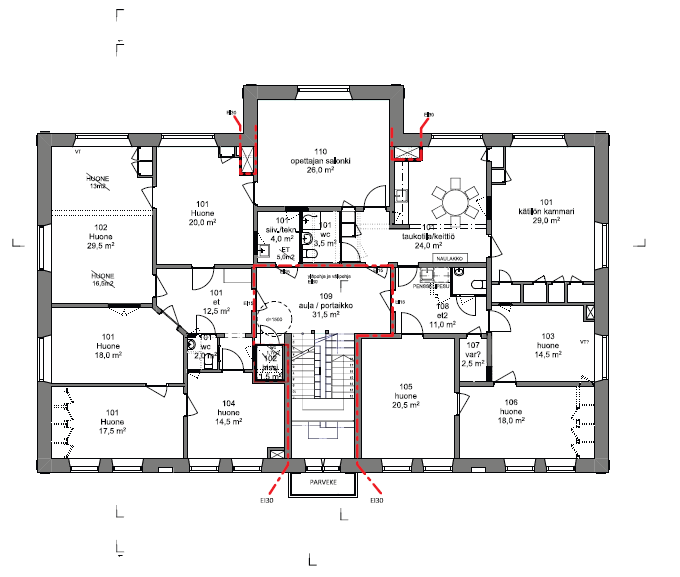
Tässä ovat alustavat luonnoskuvat 1. ja 2. kerroksesta. Tilojen monitoimisuus erilaisiin kokoontumiseen on tavoitteena, jolloin kiinteää korotettua näyttämöä ei kannata rakentaa. Vielä täytyy jatkaa suunnittelua, että 1. kerroksen tilojen muunneltavuus on helpohkosti toteutettavissa. Mikäli sinulla herää ajatuksia tilojen suhteen, niin voit laittaa ehdotuksia sähköpostitse janne.kasurinen@siilinjarvi.fi. Asialliset ideat otetaan huomioon suunnittelussa:)


16.1.2026
”Bunkkeri” -hankkeessa on saatu LVISA- ja rakennesuunnittelukilpailutus päätökseen. Suunnittelutoimistot on valittu edullisimman kattohinnan perusteella. Päivitettyjen pohjakuvien myötä tekninen suunnittelu voidaan aloittaa helmikuun aikana.
Rakennuksen tilojen suunnittelua rajoittaa kantavat seinärakenteet. Ensimmäisessä kerroksessa pystymme palauttamaan alkuperäiset luokkahuoneiden välissä olleet oviaukot, jolloin tilat ovat tarvittaessa yhdistettävissä. Toisessa kerroksessa asuntojen ja huoneiden väliset seinät ovat pääsääntöisesti kantavia seiniä. Vain yksi myöhemmin lisätty väliseinä voitiin purkaa huoneiden yhdistämiseksi. Lopulliset mahdollisuudet tilojen muokkaamiseen selviävät purkutöiden valmistuttua.
Purkutyöt ovat edenneet aikataulun mukaisesti. Asbesti ja haitta-aine purkutyöt ovat meneillään. Purkutöiden suorittamiseksi tilat osastoidaan ja alipaineistetaan, jotta purkutyöt voidaan suorittaa turvallisesti. Seuraavaksi vanhat eristeet mm. turve, sahan- ja kutterinpuru sekä oljet poistetaan imuautoa hyväksi käyttäen. Lisäksi kaikki vahingoittuneet rakenteet ja materiaalit poistetaan. Purkutyöt valmistuvat aikataulun mukaisesti helmikuun loppuun mennessä.

9.12.2025
Siilinjärven vanha kansakoulurakennus, tutummin bunkkeri, peruskorjataan energiatehokkaaksi ja nykyaikaiseksi monitoimitilaksi EU-osarahoittamana. Ahmon koulukeskuksen alueella sijaitsevan Bunkkerin peruskorjaus on merkittävä kulttuurihistoriallinen ja ympäristön kannalta kestävä hanke.

Vuosien varastokäytön jälkeen rakennus herätetään eloon ja ovet avataan alueen yhdistyksille, yrityksille, järjestöille, kulttuuritoimijoille ja pop-up toiminnalle. Tavoitteena on, että Bunkkerista tulee Siilinjärven oma kulttuuri- ja kehittämispaja, joka tarjoaa tiloja työpajoille, tapahtumille ja yhteistyöhankkeille.
Peruskorjauksessa 1923 valmistuneen suojeluluokitellun tiilikoulun sisätilat kunnostetaan ja sen energiatehokkuutta parannetaan. Hankkeessa säilytetään mahdollisimman paljon alkuperäisiä rakenteita, mikä vähentää rakennusjätettä ja pienentää hiilijalanjälkeä verrattuna uuden rakennuksen rakentamiseen.
Lisäksi rakennuksen energiankulutusta pienennetään muun muassa parannetulla eristyksellä ja aurinkopaneelien hyödyntämisellä.
Hanke toteutetaan vuosien 2025 -27 aikana ja sen budjetti on noin 2,4 miljoonaa euroa, josta EU- ja valtionrahoituksen osuus on noin 70 prosenttia. Siilinjärven kunta rahoittaa hanketta 712 176 eurolla.
Hankkeen eteneminen vuonna 2025
Hankkeen varsinaiset rakennukseen kohdistuvien töiden organisointi aloitettiin kesällä 2025. Rakennuttajakonsultiksi valittiin Henri Savolainen RakWins Oy:stä. Henrillä on jo pitkä kokemus vanhojen rakennusten korjaustöiden kilpailutuksesta, suunnittelusta ja valvonnasta. Loppukesästä tehdyssä arkkitehtisuunnittelun kilpailutuksessa arkkitehtitoimistoksi valikoitui Arkkitehtitoimisto Arto Mattila Oy, jonka erityisosaaminen on mm. vanhojen suojeltavien rakennusten peruskorjausten suunnittelussa. Syksyllä kilpailutettiin myös rakennusten sisäosien purkutöiden urakoitsija ja valituksi tuli Asbrak Oy.
Syksyn aikana tehtiin kaivuutöitä Bunkkerin ulkopuolella. Kaivantoon asennettiin uudet kaukolämpöputket sekä sähkön syöttöä varten suojaputket. Alustavina töinä asennettiin väliaikainen eriste rikkoutuneisiin ikkuna-aukkoihin, jotta tilat saatiin pidettyä lämpiminä sekä kuivina.



Bunkerin sisäosien purkutyöt aloitettiin maanantaina 8.12. työmaajärjestelyillä. Rakennuksen etupiha toimii työmaa-alueena ja se on eristetty aidalla muusta piha-alueesta. Purkutöiden ohjaamiseksi on laadittu purkutyösuunnitelma ja rakennuksen suojelusuunnitelma. Purkutöissä poistetaan rakennuksen sisäosista sisäilmaa heikentävät pilaantuneet rakennusmateriaalit ja rakenteissa käytetyt haitta-aineet. Muun muassa toisen kerroksen väliseinät puretaan rungolle ja rakennuksen ala- sekä välipohja tyhjennetään vanhasta orgaanisesta eristeestä.
Peruskorjauksessa uusitaan rakennuksen sähköistys ja lämpö- ja vesiputket, joten vanhat asennukset puretaan uusien tilalta. Rakennuksen suojelusuunnitelman mukaisesti purkutöissä pyritään säästämään vanhoja ehjiä rakenteita mahdollisuuksien mukaan. Muun muassa vanha lautapaneelinen sisäkatto ja vanhat peiliovet ovat hienoja säästettäviä rakennuksen yksityiskohtia. Tavoitteena on, että sisäosien purkutyöt on tehty helmikuun 2026 loppuun mennessä.


